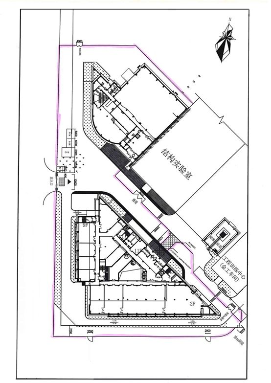
为落实学校高质量节能示范项目,基础实验中心(AB座)节能改造示范工程计划于2024年4月20日~8月31日进行施工,为满足施工作业的场地需求、确保作业过程中高空坠物所及地面人员安全,施工期间将实施基础实验中心(以下简称“实验楼”)周边封闭,具体封闭方案如下并附施工区域示意平面图:
1、金工车间、结构实验室东南入口侧,路缘石以内保留5m宽沥青路面设置围挡,保留校医院>金工车间>结构实验室的单行尽端路。
2、在金工车间东南角、结构实验室东南入口处、攀登路南端等3处设置围挡大门并常闭,临时大件运输可联系辽宁泰恒公司开门通行(联系人:陈喜胜,15998142322)
3、保留实验楼A座主入口人行通道,师生步行可经校医院>金工车间>实验楼的校内道路通行至A座入口。
4、开通己1楼东南侧1层入口至15厅室内通道。
5、因校医院以南为单行路宽度的尽端路,建议日常驾车的师生,将车辆停放于校医院以外,或20厅附近。
由于施工该区域可能产生噪音及施工车辆穿行,请广大师生远离施工区域,注意出行安全,不要擅自进入施工区域。
因室外施工受天气影响,工期有提前或延后的可能,由此产生的不便,敬请谅解。
基建与后勤管理处
2024年4月19日
封闭区域示意平面图
